Ref # : GE3977
For Sale € 185,000.00
Apartment
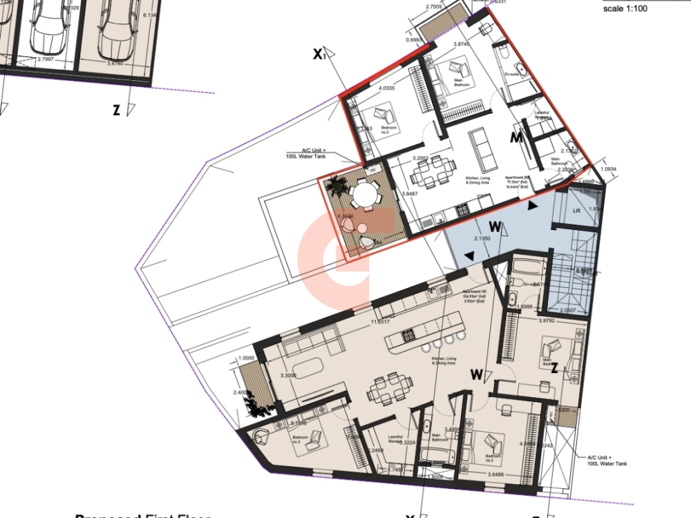
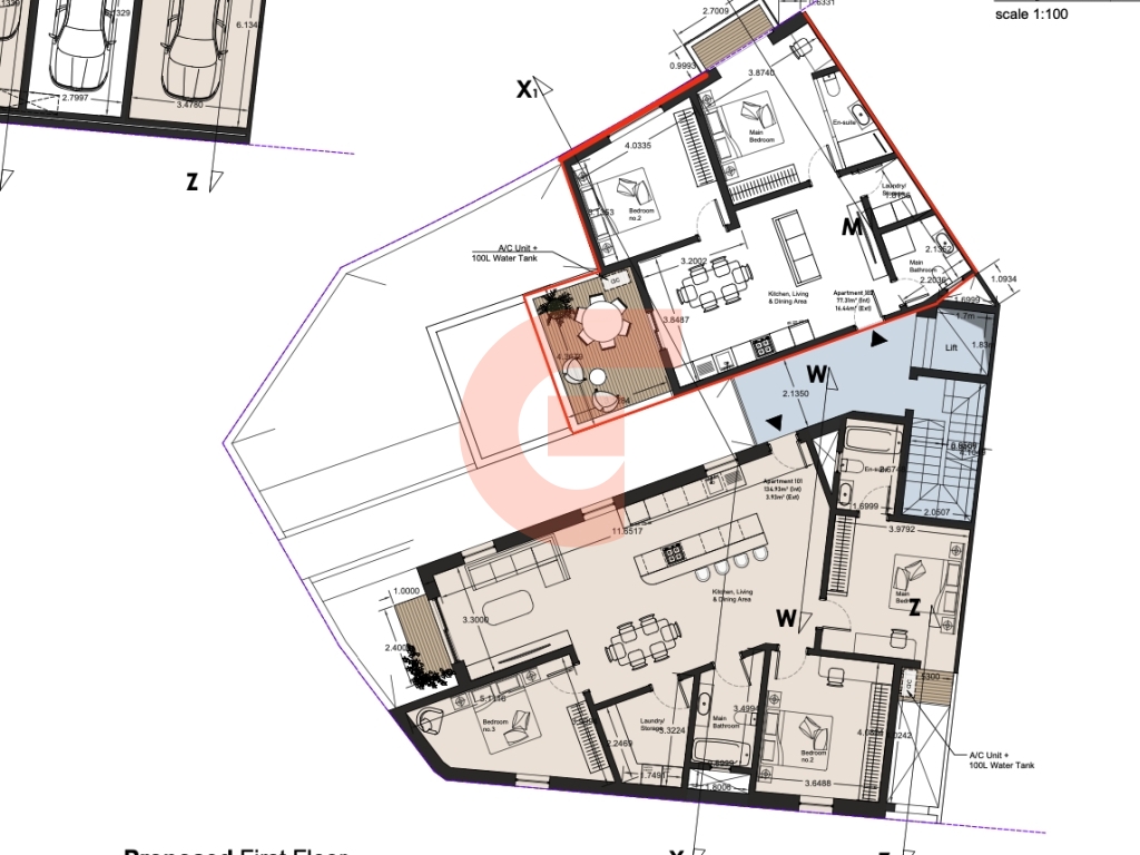
Qala, GOZOOverview
A well-planned first-floor apartment designed to maximize space, light, and functionality.
The property comprises a welcoming open-plan kitchen, living, and dining area that seamlessly connects to a 16.44m² outdoor terrace, perfect for outdoor dining and relaxation. It offers 2 bedrooms, including a comfortable main bedroom, along with a main bathroom.
With 77.31m² internal space, this apartment is ideal for first-time buyers, rental investment, or a holiday home in Gozo.
A practical yet stylish option in a peaceful residential location.
Additional €10,000 Lift & Common Parts
Features
Base Information
Parking Information
General Amenities
Exterior Amenities
Giovanni Real Estate
One of the successful real estate agency in the Maltese Islands offering property for sale and turnkey solutions in Malta and Gozo. A vast range of,Apartments, Penthouses Maisonettes, Terraced Houses, Traditional Farmhouses, Houses of character ,Bungalows, Villas, Commercial outlets, property investments and properties for sale are available in Malta and Gozo.
Check out our website, the best place to start your real estate search. You can also contact our real estate agent for a customized selection of the property types you are interested in, including professional advice and opinion.


