Ref # : GE3622
For Sale € 700,000.00
House of Character with Pool & Garden
Qala, GOZOOverview
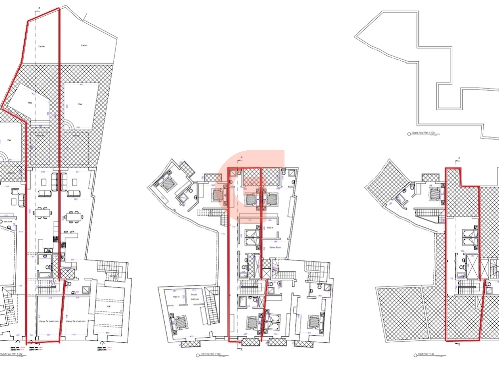
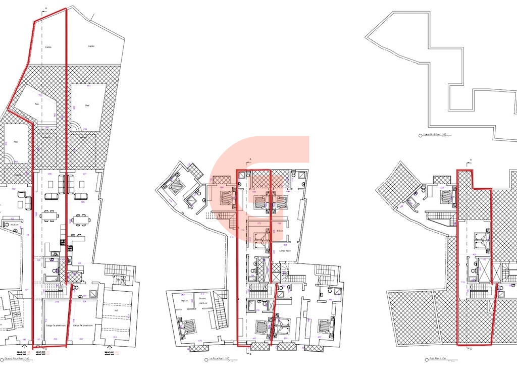
An opportunity to acquire one of these 3 Rustic Houses, complemented with a pool, and a basement Garage. The typical layout comprises an entrance on the ground level to a combined kitchen/dining/living overlooking the pool, deck, garden, and common bathroom. On the first floor, one finds 3 double bedrooms (the main with an en-suite and front balcony), another bathroom, and a back balcony. On the second floor, one finds a bedroom and 2 terraces—property to be sold in shell form at pre-construction prices.
Features
Base Information
Parking Information
General Amenities
Exterior Amenities
Landscape Amenities
Giovanni Real Estate
One of the successful real estate agency in the Maltese Islands offering property for sale and turnkey solutions in Malta and Gozo. A vast range of,Apartments, Penthouses Maisonettes, Terraced Houses, Traditional Farmhouses, Houses of character ,Bungalows, Villas, Commercial outlets, property investments and properties for sale are available in Malta and Gozo.
Check out our website, the best place to start your real estate search. You can also contact our real estate agent for a customized selection of the property types you are interested in, including professional advice and opinion.


