Ref # : GE3708
For Sale € 340,000.00
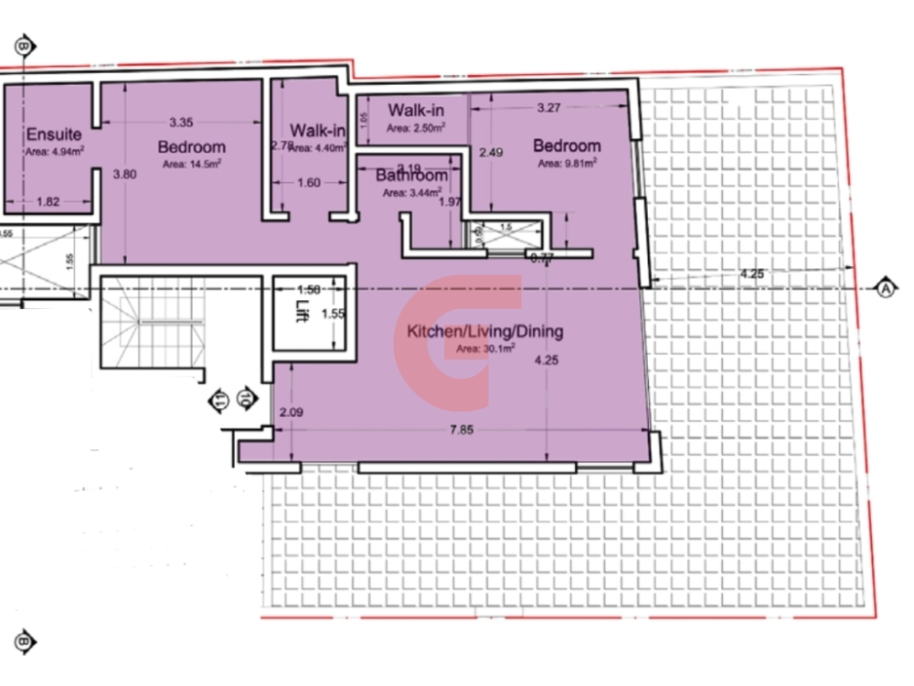
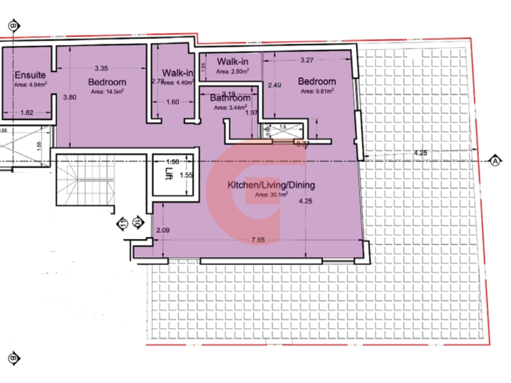
Penthouse
Nadur, GOZOOverview
Situated in the tranquil village of Nadur, this project offers the perfect blend of natural beauty and modern living. Residents will enjoy panoramic views of the valley and San Blas beach, all within easy reach of Nadur’s iconic beaches namely San Blas and Daħlet Qorrot, cafés, and Nadur’s centre.
The development comprises a total of eleven residences, carefully designed for comfort and practicality. There are nine spacious apartments which comprise three bedrooms and two bathrooms, with selected layouts including box rooms and walk-in closets, ideal for families or those seeking extra flexibility.
Crowning the project are two premium penthouses, each offering two bedrooms, two bathrooms, and expansive terraces, having one of the penthouses featuring panoramic views across the valley and San Blas beach. Beneath the complex are seven convenient garages, providing secure and accessible parking.
Features
Base Information
Parking Information
Building Information
General Amenities
Exterior Amenities
Interior Amenities
Giovanni Real Estate
One of the successful real estate agency in the Maltese Islands offering property for sale and turnkey solutions in Malta and Gozo. A vast range of,Apartments, Penthouses Maisonettes, Terraced Houses, Traditional Farmhouses, Houses of character ,Bungalows, Villas, Commercial outlets, property investments and properties for sale are available in Malta and Gozo.
Check out our website, the best place to start your real estate search. You can also contact our real estate agent for a customized selection of the property types you are interested in, including professional advice and opinion.






