Ref # : GE2989
For Sale € 274,000.00
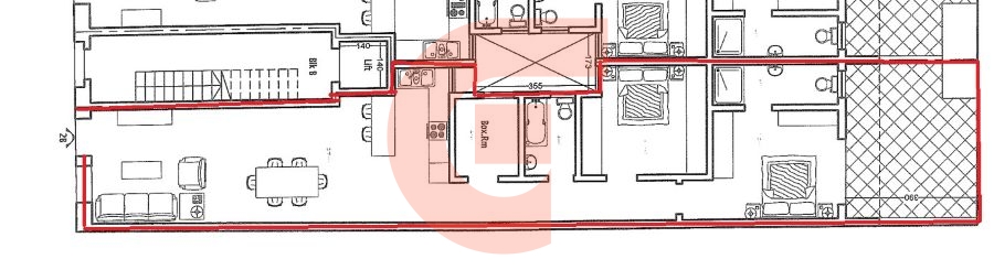
Maisonette
Gharb, GOZOOverview
A ground floor 2 bedroom Maisonette, excellently located in this traditional village of Gharb offering a layout of an entrance to a combined kitchen/dining/living, 2 double bedrooms, 2 bathrooms, a box room, and a back yard. Property to be sold in shell-form at pre-construction price.
Features
Base Information
Parking Information
General Amenities
Exterior Amenities
Giovanni Real Estate
One of the successful real estate agency in the Maltese Islands offering property for sale and turnkey solutions in Malta and Gozo. A vast range of,Apartments, Penthouses Maisonettes, Terraced Houses, Traditional Farmhouses, Houses of character ,Bungalows, Villas, Commercial outlets, property investments and properties for sale are available in Malta and Gozo.
Check out our website, the best place to start your real estate search. You can also contact our real estate agent for a customized selection of the property types you are interested in, including professional advice and opinion.






