Ref # : GE3753
For Sale € 400,000.00
Corner, Semi-Detached , Sea front
Qbajjar (Marsalforn), GOZOOverview
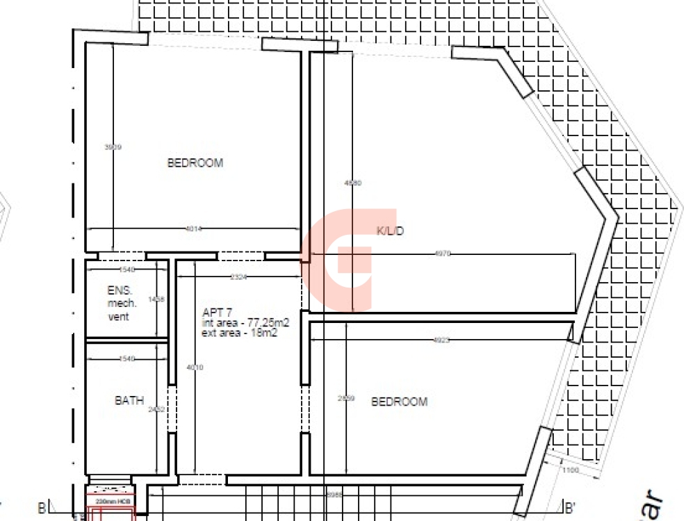
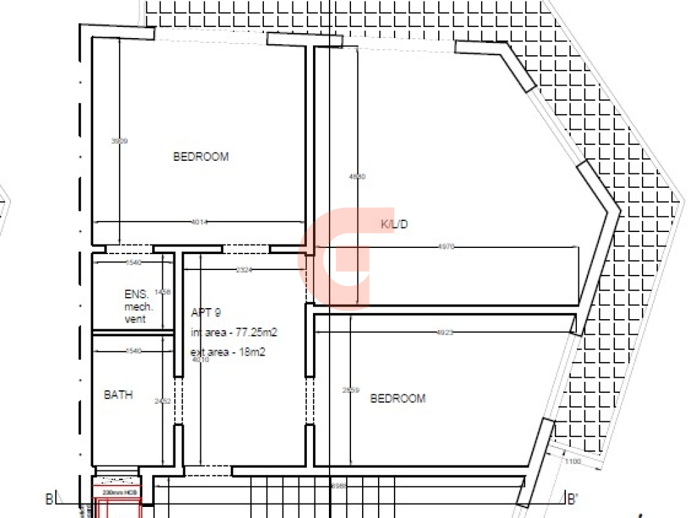
Direct seafront, lovely corner semi-detached 2-bedroom apartment located in this highly sought-after location, situated on the fourth and fifth levels, measuring 95 sqm, with a surrounding balcony, combined living/dining/kitchen, 2bedroom(1en-suite) plus main bathroom. Being sold in a shell Form, it included common parts and a lift. NOT TO BE MISSED.
Features
Base Information
General Amenities
Exterior Amenities
Interior Amenities
Giovanni Real Estate
One of the successful real estate agency in the Maltese Islands offering property for sale and turnkey solutions in Malta and Gozo. A vast range of,Apartments, Penthouses Maisonettes, Terraced Houses, Traditional Farmhouses, Houses of character ,Bungalows, Villas, Commercial outlets, property investments and properties for sale are available in Malta and Gozo.
Check out our website, the best place to start your real estate search. You can also contact our real estate agent for a customized selection of the property types you are interested in, including professional advice and opinion.








